下文續接:精品酒店深化設計施工圖(1)
2-3層過道立面和刨面圖:
二層過道立面圖01

二層過道立面圖02

二層過道立面圖03

二層過道立面圖04

二層過道立面圖05

二層過道刨面圖01-05

門表面類型:
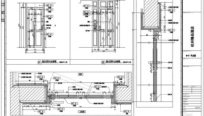
01號門內、外立面刨面圖01-04

02號門內、外立面刨面圖01-04

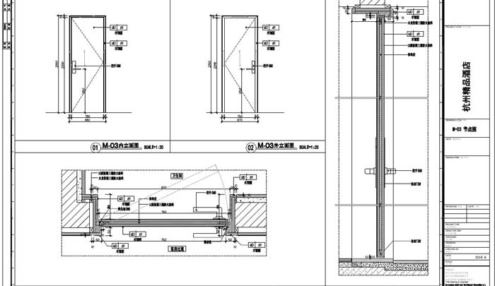
03號門內、外立面刨面圖01-04

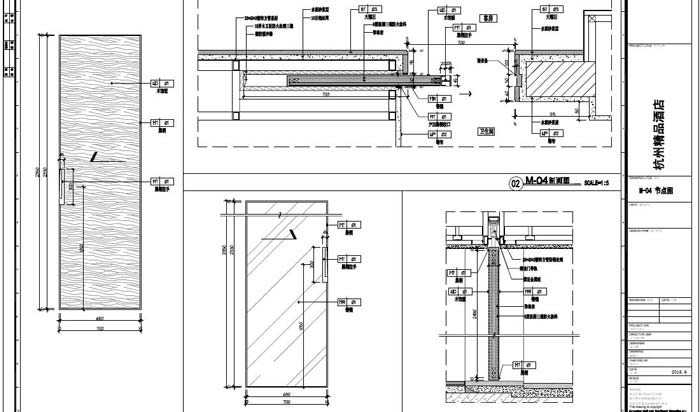
04號門內、外立面刨面圖01-04

05號門內、外立面刨面圖01-04

06號門內、外立面刨面圖01-04
